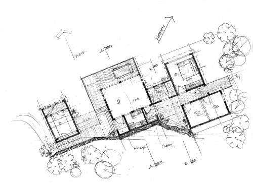
This project is located in the Mata Atlântica rainforest behind Rio de Janeiro, Brazil. It is on the side of a north-facing hill with sweeping views to the distant mountains. It can be cold in winter and very hot and humid in summer, and also receives a large amount of yearly rainfall.
It was designed for a small family and intends to become an exemplar in eco living and low-tech construction solutions.
The house features:
Adobe structural and interior walls with natural clay plasters and paints
‘Intensive’ green roofs
‘Cascaje’ minimal concrete floor slabs
‘Bason’ Composting Toilet
Grey water biological filtration system

